Аренда Офиса ул. Саксаганского в Киеве

  • Обновлено:
    10.03.2026
  • Код объявления:
    W-775597
50 000 грн.
/месяц
$
1 130 $ (1$ = 44.1 грн.)
969 € (1€ = 51.5 грн.)
  • Профиль:
    Офис
  • Метро:

    метро Университет

    метро Вокзальная

  • Площадь:
    135 кв.м.
  • Этаж:
    2
  • Материал стен:
    Кирпич
  • Ремонт (состояние):
    с евроремонтом
  • Цена за кв.м.:
    370 грн.
  • Описание
  • Показать на карте
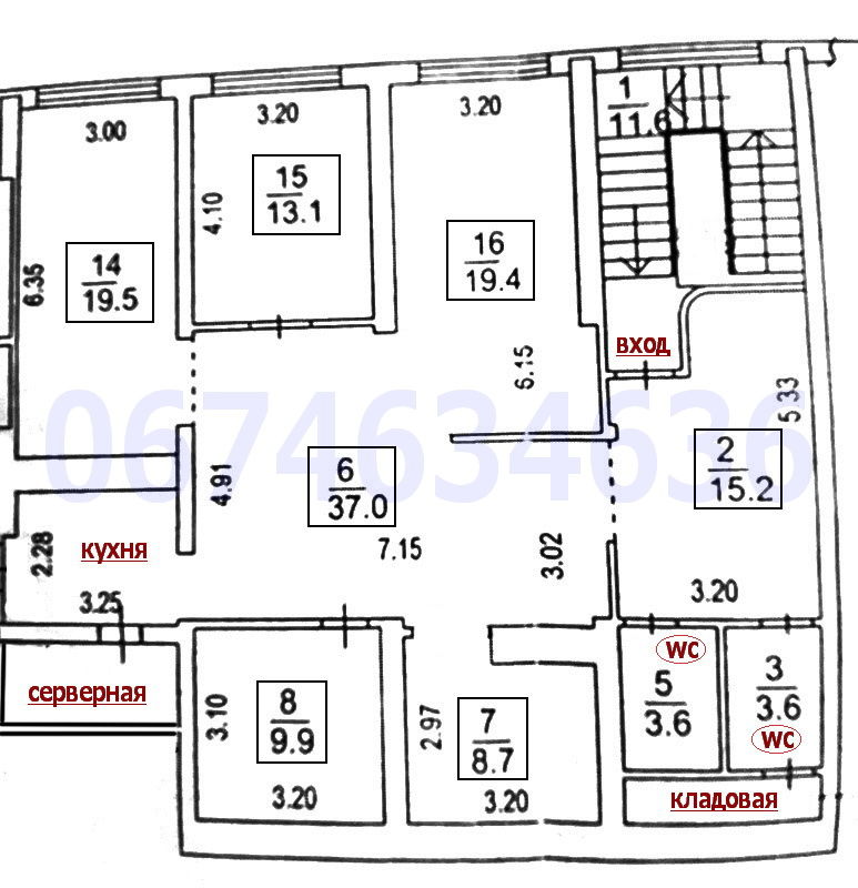
БЕЗ КОМИССИИ АРЕНДА ОФИСА, ПОМЕЩЕНИЯ В ЦЕНТРЕ! - г. Киев, Шевченковский район (Центр); - ЖК Ботаник Таурез - 2006 г.п.; - ул. Саксаганского 121, вторая линия домов; - автостанция Киев - 4 мин; - площадь Галицкая - 8 мин; - станция скоростного трамвая - 9 мин; - метро Вокзальная - 9 мин; - метро Университет - 11 мин; - отдельный вход на 2 этаж, нежилой фонд; - аренда современного офиса 135 м² с мебелью или без мебели; - возможность размещения для 13 сотрудников; - холл-приемная, 5 кабинетов (3 рабочих пространства и 2 отдельных кабинета), кухня, 2 санузла, серверная; - офисный ремонт, окна (большие стеклопакеты, жалюзи), кондиционеры, Интернет-сеть, сигнализация, индивидуальное электроотопление; - 50000 грн/месяц; - дополнительно коммунальные платежи по тарифам нежилого фонда; +380674634636 Приглашаем к сотрудничеству собственников недвижимости